🌥️
Trenčín,
17
°C
Oblačno
Žilinak
Trenčínak
Prešovak
Nitrak
Bratislavak
Trnavak
Košicak
Bystricak
27. apr, Jaroslav
Prihlásenie
Registrácia
Dnes
Správy
Krimi
Príbehy
Doprava
Fotogaléria
Viac
Dopravný servis
Program kina
Pohotovosť lekární
Počasie
Podujatia
Kvízy
Prihlásenie
Registrácia
×
📢 Dnes
📰 Správy
🚔 Krimi
📖️ Príbehy
🚦 Doprava
🎭 Podujatia
🖼️ Fotogaléria
❓ Kvízy
🎯 Slovo dňa
🎬 Program kina
☀️ Počasie
📂 Viac
🚦 Dopravný servis
🏥 Pohotovosť lekární
Meniny
Fotogaléria
•
Trenčín
21. sep 2025 o 09:00
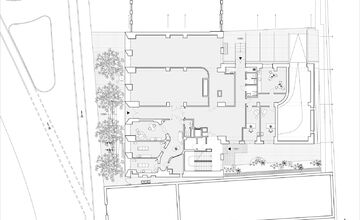
FOTO: Trenčín zabojuje o CE ZA AR, podporte projekt Námestie Sv. Anny 9
Súvisiaca téma
FOTO: Budova na námestí Svätej Anny 9 v Trenčíne je nominovaná na CEZAARA, hlasovať za ňu môžete jedným klikom
Zdroj: Matej Hakár, Juraj Hubinský
Správy emailom
Denný prehľad vždy o 17:00 hod.
Facebook kanál
Dôležité správy na Messenger
WhatsApp kanál
Rýchle správy priamo v mobile.
Nahlásiť chybu
Našli ste chybu v článku?
Zdieľať
Facebook
Zdieľať v profile alebo skupine.
WhatsApp
Poslať do správy jedným klikom.
Email
Odoslať odkaz emailom.
Skopírovať odkaz
Uložiť URL adresu do schránky.
Poslať tip
Anonymne
Formulár bez mena a kontaktu.
WhatsApp
Rýchly kontakt cez mobil.
Emailom
Priamo z vašej aplikácie.
Načítavam
Najnovšie správy
Trenčín